Icon

  LTM Concrete Industries (Machap) Sdn Bhd


ltm
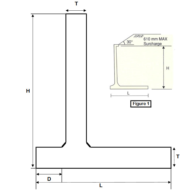
L Shape

• L Shape Wall

U-Drains

Design Criteria accordance with the following condition

  • Minimun Concrete Grade 35 N/mm²
  • Bulk Density of soil backfill 17.30 kN/m³
  • Surcharge of 610mm maximum with 30° slope (Figure 1)
  • Angle of internal friction of soil backfill to be 30°


Product Advantages

  • Easily to install and dismantle
  • Reliable quality control with factory manufacture condition
  • Maintenance free
  • Enable off loaded from transportation
  • Easily assemble by unskilled labour


Product Development

  • Technical specifiction is subject to change without prior notice

Product Dimensions

H
mm
L
mm
D
mm
T
mm
Weight(±)
tonne
1200
1800
1950
3200
1100
1550
2100
2450
150
250
300
450
100
150
150
200
0.55
1.10
1.30
2.70

*Scroll to the right to see more details.

* Standard length = 1000mm

Talk to us?